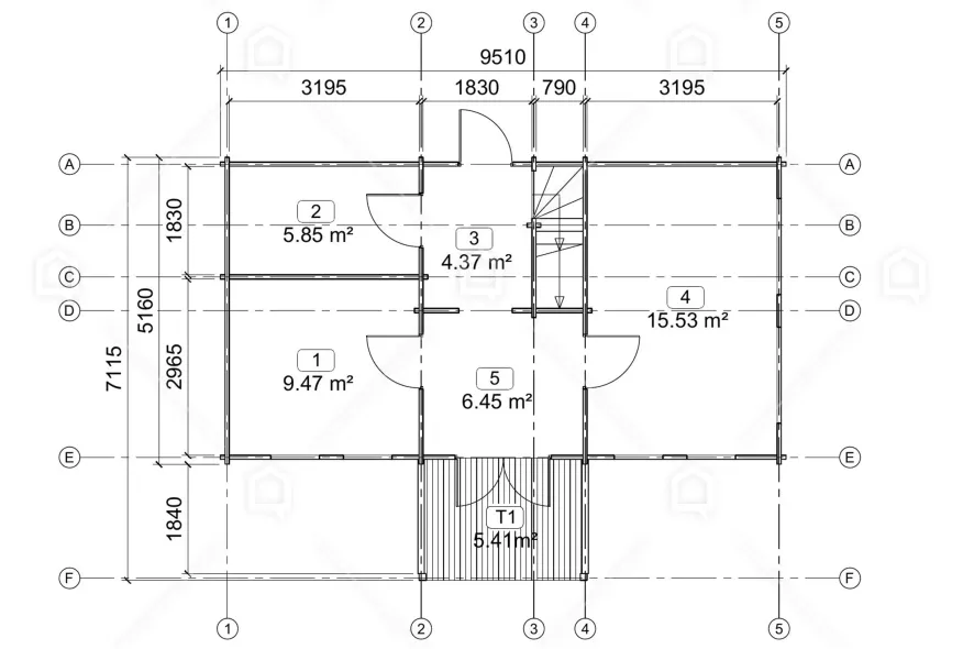
Wooden summer house “Denver” for a medium-sized family. A medium-sized two-storey wooden summer house “Denver”. The house has a kitchen, a living room, two bedrooms, and a bathroom – everything for your dream home! “Denver” is a classic two-storey wooden summer house with up to 60 m² of living space. This comfortable medium-sized long-plan house is perfectly suited for a medium-sized family. The main entrance of the house has a portico roof. This wooden summer house project includes a rather large living room, which will perfectly fit both a sofa-bed and a coffee table with armchairs, a chest of drawers with a TV or other desired rest furniture. Also, on the first floor of the house there is a kitchen of almost 10 m², a bathroom of almost 6 m² and a corridor. On the second floor of the house, two bedrooms of the same size are planned, one of them can be changed to a study or a closet. This wooden summer house is distinguished by tall windows, which not only look modern and aesthetic, but also let in more light, visually expanding the space and making the interior of the house brighter and cosier. High-quality showcase windows are included in the summer house price. Just like other buildings we offer, wooden summer house “Denver” can be designed according to your needs. Contact us and tell us your idea, and we will make it come true by designing and building a house!















