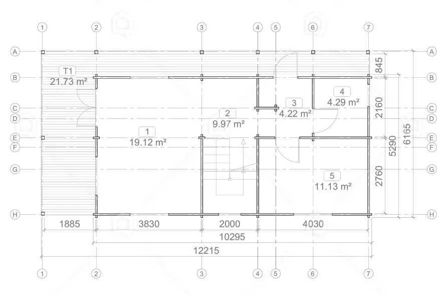
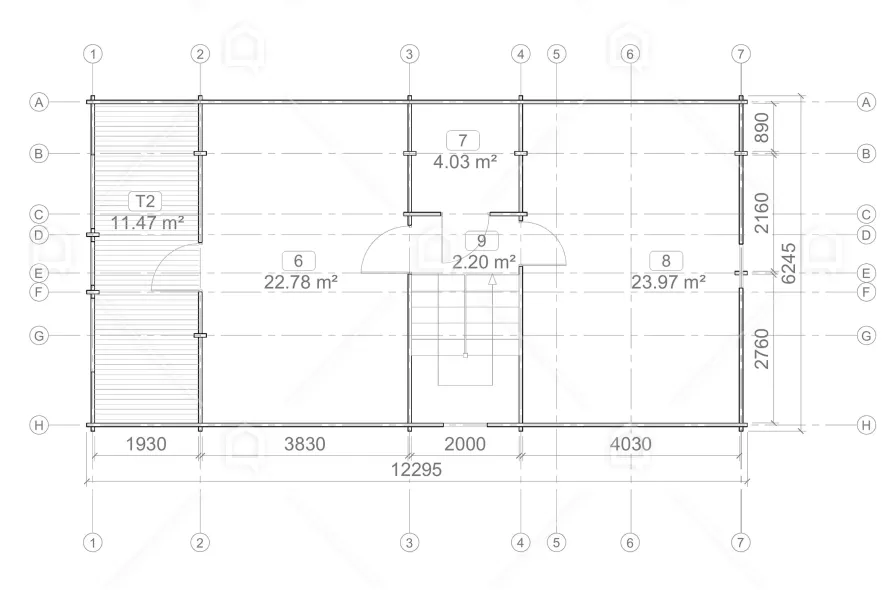
“Grasse” is a two-storey Scandinavian log cabin up to 80 m². It has all the rooms necessary for permanent living. The first floor has an open plan which is designed for a kitchen, dining room and living room. There is also a bathroom and one room that can be used as a bedroom, as an office or for other purposes. There is also a staircase leading to the second floor. On the second floor of this Scandinavian log cabin, there are two similar rooms that can be used as bedrooms. There is a bathroom as well. The second floor is bigger in volume than the first one due to the roof which becomes an important interior detail. This log cabin is great for enjoying fresh air on both the first and the second floors, as one has a terrace and another one has a balcony. The terrace goes along two walls and takes up around 20 m². The balcony can be entered from one of the rooms on the second floor. Like the other Scandinavian log cabins we produce, this one can be designed to suit your needs. Contact us and tell us your vision so that we could make it come true! All the visualizations of the projects on the website and the attributes of the house used therein are for commercial purposes only and cannot be considered as an indisputable example of the project.















