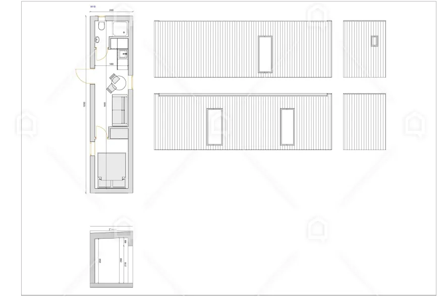
TELESTO is a compact house, perfect for holidays or living! It has a usable area of 18 m², but you'll find a cosy bedroom, a comfortable bathroom and a shared kitchen-living area.
The house can be built closer to the boundary of the plot, thus creating a private courtyard and more privacy. TELESTO is ideal for a garden plot or a countryside retreat, and can also be used for holiday rentals by the lake, river or sea. Thanks to its compact size, it can easily find a place on any plot and can comfortably accommodate 1-4 people. The main lounge area can comfortably sleep up to four people, two in the bedroom and two in the living room.
The exterior of TELESTO is finished with cladding and the single-pitch roof is covered with Retro tin. The house has recessed lights, doors and a tiled bathroom with a shower and toilet. The rooms have quality laminate flooring and a functional kitchen with basic appliances.
The house can be customised to suit your needs by changing the finishing materials, the layout or the number of windows. Purchase the standard project or get in touch for individual changes!
A house is made up of several individual modules that are manufactured and assembled into a whole house in our factory. The modular house arrives on the customer's plot with interior and exterior finishes, a kitchen and a sanitary area.
- Robust, high quality and airtight construction (we use Siga sealing tapes with unlimited warranty).
- We use the highest quality C24 wood.
- Very good thermal insulation properties.
- Excellent sound insulation.
- Cost-effective product with low energy consumption.
- Easy to achieve the highest energy performance energy efficiency class.
- Short construction times.
- The house is assembled in the factory, the process is not weather dependent.
- A tidy construction site as the house is assembled in the factory and delivered to the site.
- Sustainable – when building a modular home, less material waste is produced than during a standard construction, meaning that it’s more friendly for the environment and your pocket (less material waste = less materials needed + quicker clean up).
- Quality – modular homes are factory-controlled, meaning that the whole construction is highly vetted before being installed. This pays off in high quality that you can be sure of.
- Safer construction – less disturbance and safer construction are what define modular homes – building a house like that can even help you stay on good terms with your neighbors.
| ROOF COVERING | |
| Structural wooden panel | 285 mm |
| Roof specification | Steel roofing Retro 25/Bituminous coating |
| Rocwool layer | 195 mm |
| MDP panels | 12 mm |
| Rainwater guttering system | Metal |
| EXTERIOR WALLS | |
| Facade finishes | Oiled or painted cladding boards |
| Structural wooden panel | 286 mm (vertical cladding boards) |
| 258 mm (horiontal cladding boards) | |
| Wall specification | Timber frame |
| Rocwool layer | 145 mm |
| Ventilation layers | Yes |
| INTERIOR | |
| Partitions | 70 mm |
| Internal partition specification | MDF board |
| Timber frame | |
| Insulation | |
| MDF board | |
| Wall finishes (living area) | Oiled cladding boards |
| MDP panels. TG-2 with click joint, connects without gaps. The thickness is 12 mm. | |
| Floor covering (living area) | Laminated floorboards. Resistance class: 33. Connection system: click. Thickness: 12mm |
| Bathroom | Stoneware tiles. Resistance: PEI4. |
| WINDOWS, DOORS | |
| Windows | PVC double-glazed |
| Doors | PVC double-glazed |
| FLOORS | |
| Structural wooden panel | 241 mm |
| Floor specification | Rodent control mesh |
| Steel frame | |
| Timber beams | |
| OSB boards | |
| Laminate flooring | |
| Rocwool layer | 195 mm |
| HOUSE EQUIPMPMENT | |
| BATHROOM | |
| Bathroom furniture | |
| Sink + faucet | |
| Mirror | |
| Shower enclosure + faucet | |
| Toilet | |
| Towel radiator | |
| Recuperator | |
| KITCHEN AREA | |
| Kitchen furniture | |
| Sink + faucet | |
| GENERAL ELEMENTS | |
| Light fittings (recessed) | |
| Air-to-air heat pump | |
| Interior door | |
| ELECTRICAL INSTALLATION INSIDE THE BUILDING | |
| Internal distribution panel | Sockets, switches, wiring layout. |
| Distribution panel | For connecting external communications |
| WATER SUPPLY/WASTER INSIDE THE BUILDING | |
| Wastewater pipelines | Wastewater distribution system. |
| Sanitary appliances | Connectors for connection to external communications |











